VENDUTO
Taggì di Sotto, appartamento al primo terra con tre camere da letto – B3
In un contesto residenziale recente e piacevole (costruzione del 2014), proponiamo un appartamento al piano terra con un ampio giardino esclusivo di circa 166 mq. Situato in una zona tranquilla e silenziosa, è l’ideale per famiglie. L’immobile è parte di una palazzina con ascensore e offre una luminosa zona giorno, cucina arredata, tre camere da letto a scalare, due bagni (uno con doccia e l’altro con vasca), un ripostiglio e un garage doppio con cantina al piano interrato.
L’appartamento è dotato di riscaldamento centralizzato a pavimento con conta-calorie, cappotto termico, pannelli solari e un impianto fotovoltaico condominiale.
Gli alloggi sono venduti direttamente dalla società Investire SGR Spa, gestore del Fondo Comune di Investimento Immobiliare “Veneto Casa”, con la consulenza del Consorzio Cerv.
Per maggiori informazioni, contattare i numeri:
348 2550559 o 349 7109975.
- Quattro locali
- Tre camere da letto
- Due bagni
- Cucina abitabile
- Giardino di 166,16 metri quadrati
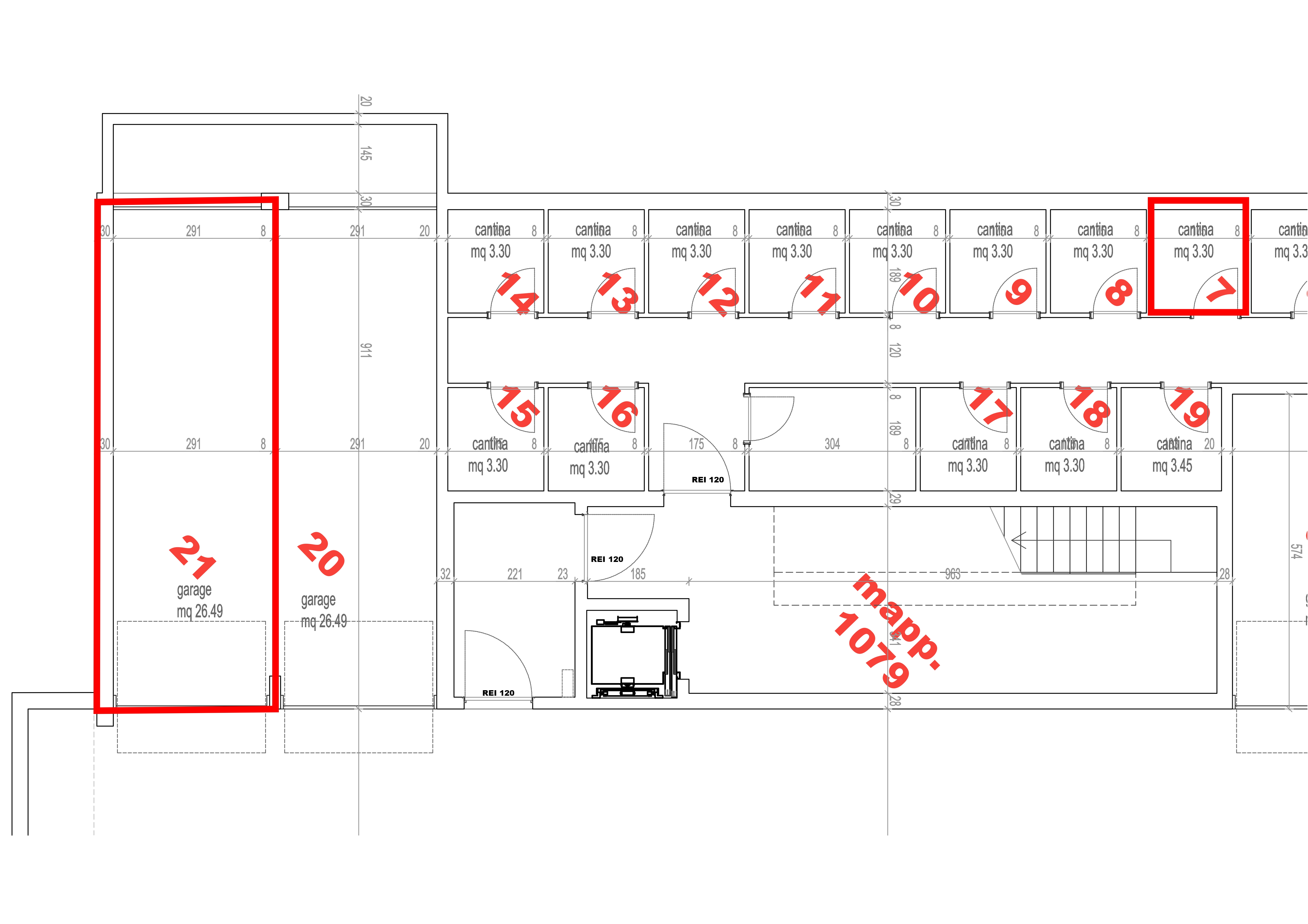
- Garage al piano interrato con due posti auto di 26,5 metri quadrati
- Cantina
- Piano terra
- 100 metri quadrati superficie calpestabile interna
- 165 metri quadri di superficie commerciale
- 166 metri quadri di giardino privato
- Classe B con IPE 80,09 kWh/m2 anno
Piantina
Gallery
Chiedi un contatto
348.2550559
349.7109975
CERV
Consorzio per l’Edilizia Residenziale Veneta – s.c.p.a. Società Cooperativa per azioni
sede legale: via Torino 186, 30172 Venezia Mestre
sede operativa: via Savelli, 120 int. 4 35129 Padova
CF e Piva 00727670275